Thang máy tải hàng
Thang máy tải hàng là một phần rất quan trọng trong các nhà máy, nhà kho, kho hàng trong các toà nhà, thư viện… với khả năng chịu được trọng tải cao, khả năng chịu sự va đập và chuyển tải hàng hóa nặng một cách nhanh chóng, bền bỉ và hiệu quả.
Ưu điểm khi sử dụng thang máy tải hàng
- Vận chuyển hàng hiệu quả: Thang máy tải hàng có lắp hệ thống điều khiển bằng máy tính, và điều khiển bằng biến tần (tùy chọn). Loại thang máy chuyển hàng LINES không những có ưu điểm tiết kiệm điện năng, hoạt động nâng chính xác mà còn có ưu thế về công suất vận chuyển nhanh chóng hiệu quả. Hơn nữa, loại thang máy này có ưu thế về thiết kế, chi phí hợp lý và được sử dụng cho nhà máy, trung tâm vận tải, kho, phương tiện đi lại.
- An toàn và tin cậy: Thang máy tải hàng có lắp hệ thống điều khiển máy tính, tăng độ tin cậy cho thang máy.
- Ổn định và tiện lợi: Thang máy tải hàng có biến tần đặc biệt nhằm giúp thang máy khởi động và dừng lại một cách ổn định và tiện lợi.
- Tiết kiệm và hiệu quả: So với thang máy tốc độ có biến tần 2V (AC-2), thang máy tải hàng có thể tiết kiệm được 40% lượng điện tiêu thụ.
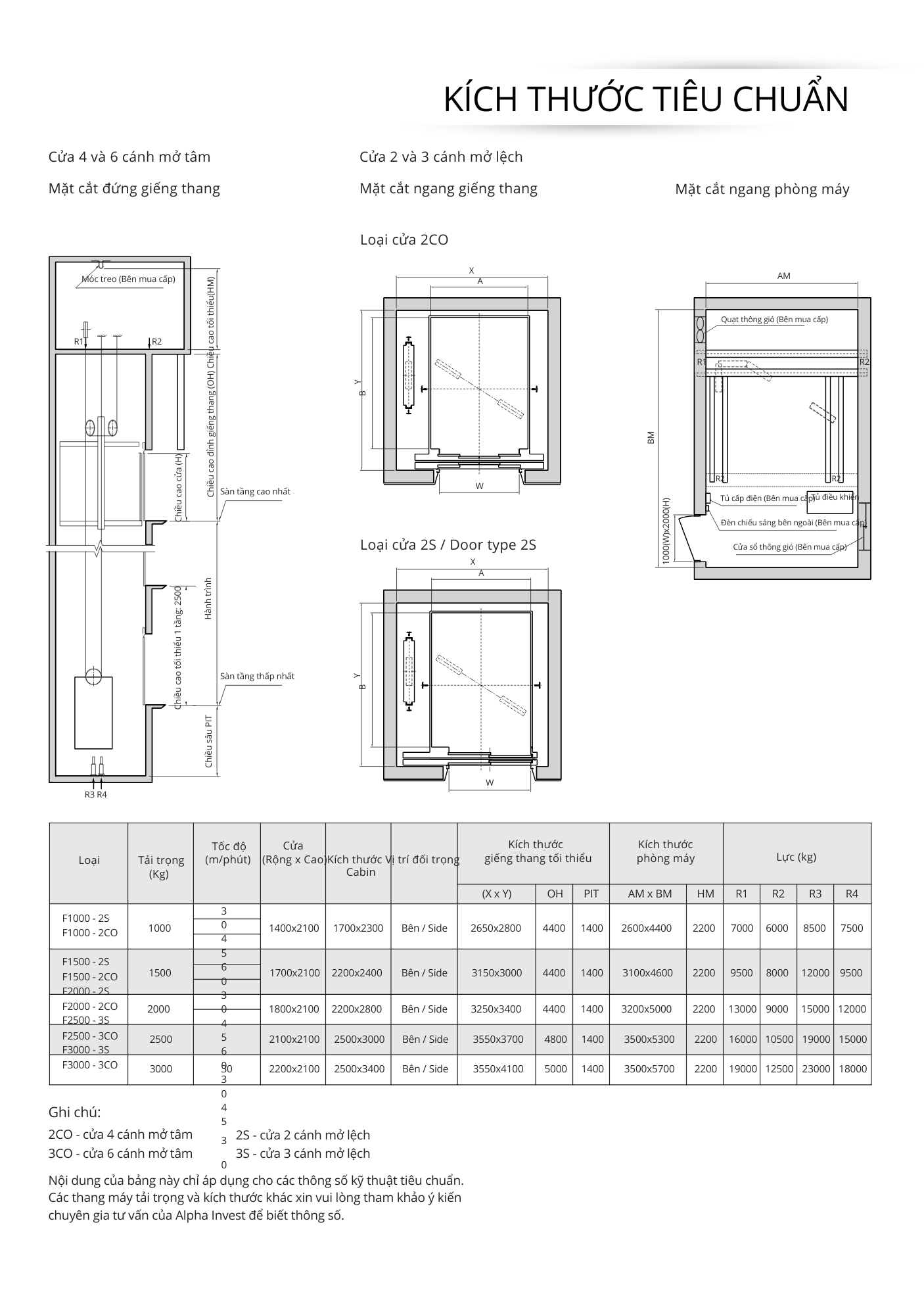
Đặc tính của thang máy tải hàng
- Tải trọng: 100Kg ~ 5.000Kg
- Tốc độ di chuyển từ 15m/p đến 60m/p
- Sàn cabin: Tole sắt gân
- Vách và trần cabin sử dụng: Inox và tôn sơn tỉnh điện
- Đèn chiếu sáng: Lắp đặt trên trần phòng thang
- Cửa tầng: cửa Tôn (hoặc Inox) mở tự động với thiết kế tiêu chuẩn 2 cách mở tim hoặc Cửa sắt xếp mở bằng tay. Để tăng độ rộng cửa mở tối đa ta có thể chọn kiểu truyền động 2 cánh mở về 1 phía, hoặc có thể chọn kiểu truyền động 4 cánh mở tim về 2 phía.
Lưu ý khi xây dựng phòng máy và hố thang máy nâng hàng
- Xây dựng phòng máy thang máy: Khi xây dựng phải chừa chiều cao cho đúng quy định để puly có đủ góc ôm và cáp thang máy hoạt động tốt, việc này ảnh hưởng đến chất lượng của thang, móc treo palang trên nóc phòng máy. Độ ẩm và độ thông thoáng của phòng máy cũng rất quan trọng khi xây dựng phòng máy, việc này ảnh hưởng đến sự hoạt động của các thiết bị máy móc trong phòng. Đặc biệt để ngăn chặn người lạ không có phận sự đi vào phòng thì nên có ổ khóa để việc kiểm soát người ra vào dễ dàng hơn. Khi xây dựng phòng máy nên có cầu thang bộ hoặc thang sắt nhằm dễ dàng cho sửa chữa vào bảo trì.
- Xây dựng hố thang: Khi xây dựng hố thang cần phải thi công đúng kích thước và tỉ lệ của bản vẽ, không được sai xót quá mức cho phép là 10mm. Chống thấm triệt để cho hố PIT nhằm đảm bảo không thấm nước. Xây dựng đà bê tông đúng kỹ thuật để treo cửa tại tất cả các tầng. Để trống chỗ để chỗ lắp đặt bảng nút bấm tầng. Đặc biệt thành giếng không bị dột để tránh ảnh hưởng đến cabin.
Công Ty Alpha Invest có sản phẩm công nghệ cao về thang máy vận chuyển hàng, thang máy chuyển giường bệnh viện, thang máy tham quan, thang máy vận chuyển phương tiện đi lại và thang cuốn với các dịch vụ như sản xuất, bán hàng, lắp đặt, bảo dưỡng và nâng cấp.




